Sold 2017
313 Prospect Seattle Home
- Homes

















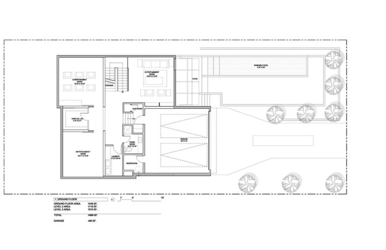
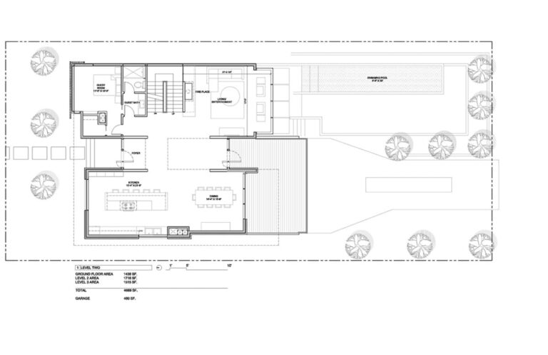
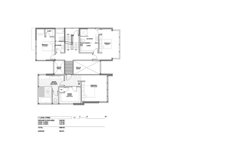
Barcelo Homes presents a new ultra-luxe high performance home atop the premier foothill of Queen Anne. Enjoy panoramic views of the Seattle city skyline, space needle, & Sound. A sophisticated & functional custom oasis with soaring ceilings, floor-to-ceiling windows, folding glass walls, architectural steel & glass suspended walkway, integrated surround sound system, wine cellar, multi-level decks, designer chef’s kitchen, outdoor kitchen, & seamlessly connected indoor & outdoor living areas.
FEATURES:
- Exceptional floor plan with free flowing light filled living areas
- Floor to ceiling windows with views of Seattle and the Space needle
- Multiple decks off living room and kitchen area for an expanded entertainment area
- Third party Built Green certification
- Polished concrete floors
- High performance double pane Windows
- Modern high-end finishes
- Cutting edge design and architecture
- Low flow water fixtures
- Energy Star appliances
- Blown in insulation in exterior walls
- In-floor radiant heating
- Air tight drywall air sealing
- Tankless water heating
- Heated and finished garage



