Sold 2012
5210 90th Ave SE Mercer
Island Home
- Homes









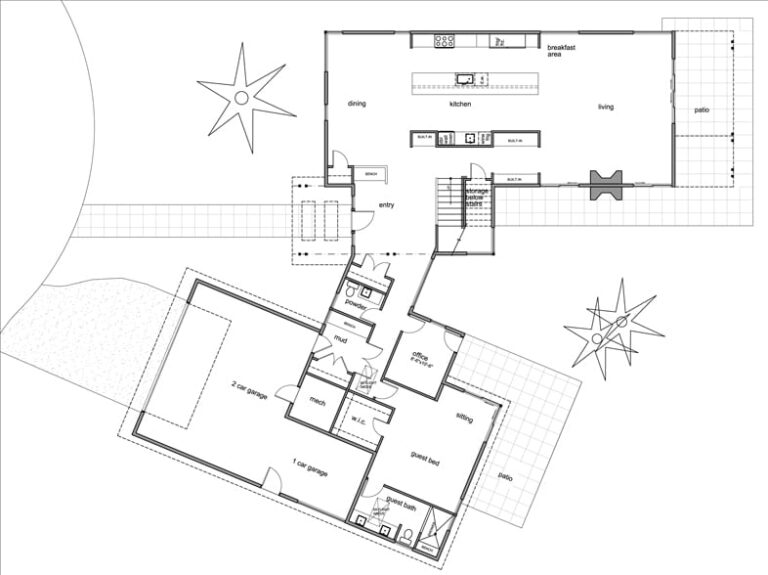
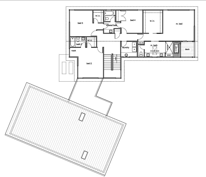
Mercer Island Modern home nestled amongst beautiful trees. This 5 bedroom plus den/ 4.5 bath 4078 sq ft Built Green home is situated in a quiet cul-de-sac, Mid-Island, close to award winning Mercer Island Schools. Designed by Julian Weber Architects, this home has radiant heated concrete floors, open kitchen and living areas, 4 bedrooms all on 1 level, and backs up to a lovely green belt.
HOME FEATURES:
- 5 bedrooms plus den/ 4.5 baths
- 3 car garage
- 4078 sq ft
- Gourmet Kitchen
- A/C
- Mud Room
- Radiant Heat Concrete Floors
- High Efficiency Windows
- Green Belt
- Cul-de-sac location
- Near Island Park Elementary

