Sold 2018
6824 96th Ave SE, Mercer Island
- Homes















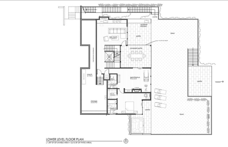
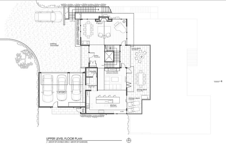
A flawless contemporary home built by Barcelo Homes perched above 75 feet of low-bank Mercer Island waterfront. A remarkable profile with walls of glass, monster ceilings, and endless Lake Washington views from all three open levels. Indoor and outdoor luxury living courtesy of a state-of-the-art kitchen, five en-suite bedrooms, an entertaining level with a second kitchen, two large decks, two patios, and a renovated private dock with boat space. Exceptional Lakefront living at its best!
FEATURES:
- Exceptional floor plan with free flowing light filled living areas
- 6 bedrooms, 6 baths
- Multiple decks off living room and kitchen area for an expanded entertainment area
- Third party Built Green certification
- Polished concrete floors
- High performance double pane Windows
- Modern high-end finishes
- Cutting edge design and architecture
- High efficiency HVAC Forced Air System w/ A/C
- Low flow water fixtures
- Energy Star appliances
- Blown in insulation in exterior walls
- In-floor radiant heating
- Air tight drywall air sealing
- Tankless water heating
- Heated and finished garage


